ГлавнаяКаталог Офис — Розы Люксембург ул., 64

Розы Люксембург ул., 64, 79.90 м 2

100 000 ₽
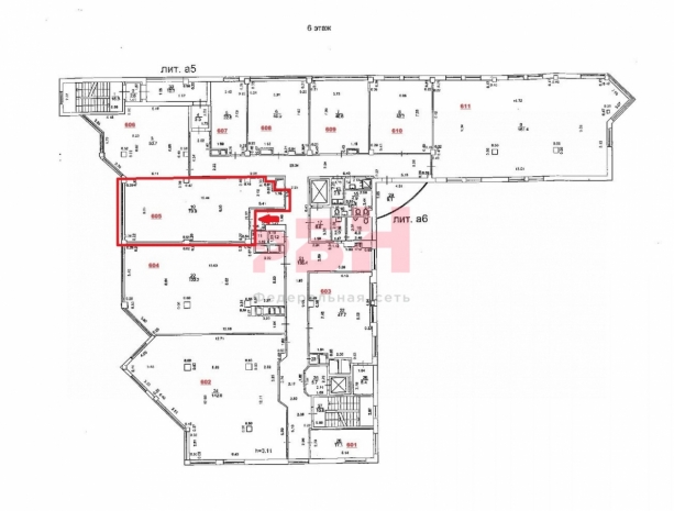
Площадь: 79.90м 2 Этаж 6 из 11
1 251 ₽/м 2
Лопаева Ксения
Лопаева Ксения
Специалист
или оставьте ваш номер,
и я перезвоню в течение 5 минут
Нажимая на кнопку, вы даете своё согласие на обработку персональных данных и соглашаетесь с политикой конфиденциальности
Предлагается в аренду офисное помещение в бизнес-центре, общей площадью 79,9м2.

Без комиссии для арендаторов.

-исторический Центр города;
-бизнес-центр класса «В»;
-удобная транспортная развязка, в шаговой доступности остановки общественного наземного и подземного транспорта;
-мини-кафе на территории бизнес-центра;
-этаж 6 / общее количество этажей 11;
-общая площадь 79,9м2;
-открытая планировка;
-окно – пластиковый стеклопакет, пол - линолеум, стены -обои под покраску, потолок - "Армстронг;
-кондиционирование;
-центральное отопление;
-окна выходят на набережную;
-система видеонаблюдения на этаже;
-сан.узел на этаже;
-охрана на входе, контрольно-пропускной режим в здание;
-система электронных пропусков, возможность круглосуточного доступа в офис, охрана 24/7;

Возможное назначение: офис компании, студия красоты и др.

Стоимость аренды – 100 000 руб./мес. (1 250 руб./кв.м.), в т.ч. НДС 5%.
Дополнительно оплачивается электроэнергия по счетчикам.
Предусмотрен обеспечительный платеж.

Более подробную информацию уточняйте у наших специалистов.
------------------------------------------------------
"Регион Бизнес Недвижимость".
Коммерческая недвижимость.
Без комиссии для арендаторов.
Арт. 117937694
Расположение

Розы Люксембург ул., 64

Похожие объекты

Посмотреть другие объявления в этой категории