Ленина ул., 53, 538.80 м 2

37 000 000 ₽
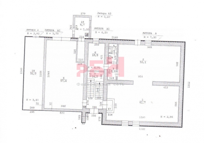
Площадь: 538.80м 2 Этаж 1 из 2
68 671 ₽/м 2
Николаенко Станислав
Николаенко Станислав
Специалист
или оставьте ваш номер,
и я перезвоню в течение 5 минут
Нажимая на кнопку, вы даете своё согласие на обработку персональных данных и соглашаетесь с политикой конфиденциальности
Предлагается к продаже отдельно-стоящее здание 538,8 кв.м с землей 450 кв.м., все в собственности
Без комиссии для покупателей

-Расположено на перекрестке улиц Ленина-Свердлова. Остановка общественного транспорта в шаговой доступности;
-Развитая инфраструктура, рядом находятся учебные учреждения, жилая застройка;
-Хороший пешеходный и автомобильный трафик, густонаселенный район;
-Общая площадь 538,8 кв.м;
-3 этажа, в том числе подвал;
-Электроснабжение - 15кВт с возможностью увеличения, центральные сети, газ;
-Парковка на территории собственного земельного участка;
-Есть вариант рассрочки;
-Есть потенциальный арендатор.

Стоимость объекта: 37 000 000 рублей

Более подробную информацию уточняйте у наших специалистов.
------------------------------------------------------
"Регион Бизнес Недвижимость".
Коммерческая недвижимость.
Без комиссии для покупателей

Арт. 127718220
Расположение

Ленина ул., 53

Похожие объекты

Посмотреть другие объявления в этой категории