ГлавнаяКаталог Офис — Радищева ул., 55
Перетокина Анна
Перетокина Анна
Специалист
или оставьте ваш номер,
и я перезвоню в течение 5 минут
Нажимая на кнопку, вы даете своё согласие на обработку персональных данных и соглашаетесь с политикой конфиденциальности
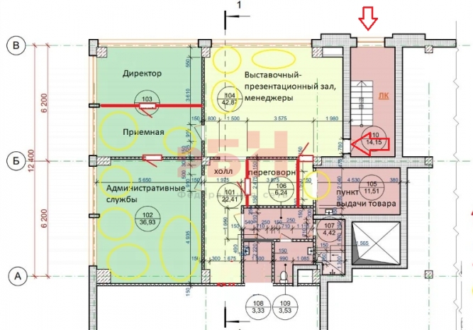
ПРЕДЛАГАЕТСЯ в АРЕНДУ офисное помещение 165 кв.м. в центре города на Московской горке
Без комиссии для арендаторов.

- расположено на втором этаже в ТЦ "На Московской горке", в центре Екатеринбурга, вблизи перекрестка улиц Радищева- Московская;
- хорошая транспортная доступность, в шаговой доступности остановка общественного транспорта;
- отдельный вход с торца здания;
- кабинетная планировка, можно изменять конфигурацию, стены не несущие;
- свой санузел;
- общая площадь 165 кв.м;
- высота потолков - 2,7;
- разрешенная мощность - 10 кВт (возможно больше по потребности);
- в здании есть ресторан с бизнес-ланчами;
- свободная парковка у ТЦ;
- одно-два машино-места за шлагбаумом.

Стоимость аренды: 165 000 руб. в месяц. (1 000 руб./кв.м)
Коммунальные платежи оплачиваются отдельно.

Более подробную информацию уточняйте у наших специалистов.
--------------------------------
"Регион Бизнес Недвижимость".
Коммерческая недвижимость.
Без комиссии для арендаторов.
Арт. 127751787
Расположение

Радищева ул., 55

Похожие объекты

Посмотреть другие объявления в этой категории